Trilocale in vendita

Desio, Via XXV Aprile
€ 199.000
Prezzo aggiornato
3 locali 3 locali
109 Mq 109 Mq
2 bagni 2 bagni

Trilocale in vendita

Desio, Via XXV Aprile

Descrizione annuncio

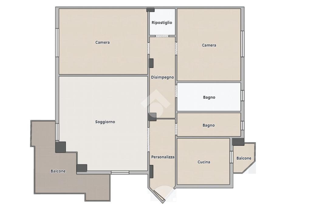
In posizione strategica, tra il Parco e la Stazione di Desio e a pochi passi dal centro cittadino, proponiamo in vendita luminoso appartamento di tre locali con cantina e box auto, situato al piano rialzato di un contesto condominiale ordinato.
L’ingresso si apre su un accogliente soggiorno con accesso ad un comodo balcone, separato dalla cucina abitabile. Un comodo disimpegno conduce alla zona notte, composta da due ampie camere matrimoniali, un pratico ripostiglio e doppi servizi, entrambi finestrati.
L’immobile è stato oggetto di recente ristrutturazione, che ha previsto l’installazione di nuovi serramenti in PVC con doppio vetro e la posa di pavimentazione in gres porcellanato effetto legno nella zona giorno, conferendo agli ambienti un aspetto moderno e funzionale.
Completano la proprietà una cantina e un box auto, inclusi nella proposta.

Mostra tutto

Nelle vicinanze

Trasporto pubblico Trasporto pubblico
stazione di Seregno
stazione di Seregno
3,0 Km
Via Lombardia - Via Milite Ignoto (Desio)
Via Lombardia - Via Milite Ignoto (Desio)
70 m
Trasporto pubblico
450 m
Scuole Scuole
Scuola Secondaria di 1° grado Gianni Rodari
550 m
Istituto Comprensivo Prati
760 m
Istituto comprensivo (materna, elementare e media) di via Prati
770 m
Scuola Media Statale Sandro Pertini
1,1 Km
ITIS
1,1 Km
Farmacia Farmacia
Ravasi
590 m
Galbiati
1,0 Km
San Giorgio
1,1 Km
San Carlo
1,3 Km
Comunale 3
2,0 Km
Ospedali Ospedali
Ospedale di Desio
1,6 Km
Ospedale di Lissone
1,8 Km
Supermercati Supermercati
Unes U2
370 m
Coop
1,3 Km
Supermercati
1,3 Km
Di Più
1,3 Km
Supermercato Pozzoli
1,4 Km
Negozi Negozi
Panetteria Pergolino
980 m
Calzedonia
1,0 Km
Panetteria San Giorgio
1,4 Km
Dolce Forno Lissone
1,7 Km
Mec Shopping
1,7 Km
Bar Bar
Bar Roma
580 m
Bar Centrale
750 m
Bar
880 m
Level
930 m
Gelateria Blu
970 m
Ristoranti Ristoranti
Ristoranti
130 m
Eurotaverna
950 m
La Taverna
980 m
La lune e il falò
1,0 Km
La smorfia napoletana
1,1 Km
Mostra tutto

Caratteristiche

Rif.:
61159285
Piano:
1 di 8 con ascensore (Piano rialzato)
Box:
1
Balconi:
1
Camere da letto:
2
Arredamento:
Assente
Mostra tutto
Prezzo Prezzo
€ 199.000
Rata mutuo Rata mutuo
€ 938 / mese
Proponi il tuo prezzoProponi il tuo prezzo

Classe Energetica

F
F
F
F
F
F
F
F
F
EP globale non rinnovabile:
154.96 kW h/m² anno
EP invernale del fabbricato:
EP estiva del fabbricato:
Anno di costruzione:
1972
Riscaldamento:
Centralizzato
Tipo impianto:
A radiatori
Tipo alimentazione:
Altro

Prezzo ridotto di €1 (6%%)

Ti interessa visionare l'immobile?

Fissa un appuntamento  Fissa un appuntamento

Richiedi informazioni

Clicca su Leggi per aprire l'informativa
* Questi campi sono obbligatori

Calcola il tuo mutuo

Semplice e senza impegno
Anticipo

( % )
Mutuo

( % )

pochi semplici passi

inserisci i tuoi dati
Questionario completato
Grazie per aver richiesto un appuntamento senza impegno con un nostro Consulente del Credito e Assicurativo.

Hai inserito correttamente tutti i dati necessari e a breve riceverai una e-mail con un link da convalidare per inviare i tuoi dati.
Affiliato
Studio Rasini D.I.
Via Garibaldi, 96 20832 Desio (MB)
Via Garibaldi, 96 20832 Desio (MB)
Zona: Desio
Mostra su mappa
Orari: lunedì - venerdì 09.00-12.30; 14.30-19.30; sabato 09.00 -12.30; 14.30- 17.00.
Affiliato
Studio Rasini D.I.
Via Garibaldi, 96 20832 Desio (MB)

2026 Tecnocasa Franchising S.p.A. - P. IVA 08365160152 - Via Monte Bianco 60/A 20089 Rozzano (MI). Ogni agenzia ha un proprio titolare ed è autonoma. Privacy policy | Policy utilizzo | Cookie policy